Search Burngreave Messenger 2016 Archive
Skip Navigation
What's new | Archives | About us | Get involved | Events | Contact us |
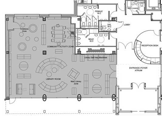
You are here : Burngreave Messenger 2016 Archive / Archives / 2013 / August 2013 Issue 107 / Library moving to Sorby house / Sorby House - the Library Plan
Follow us on: Twitter @TheBMessenger | Help the Messenger with a donation
Up